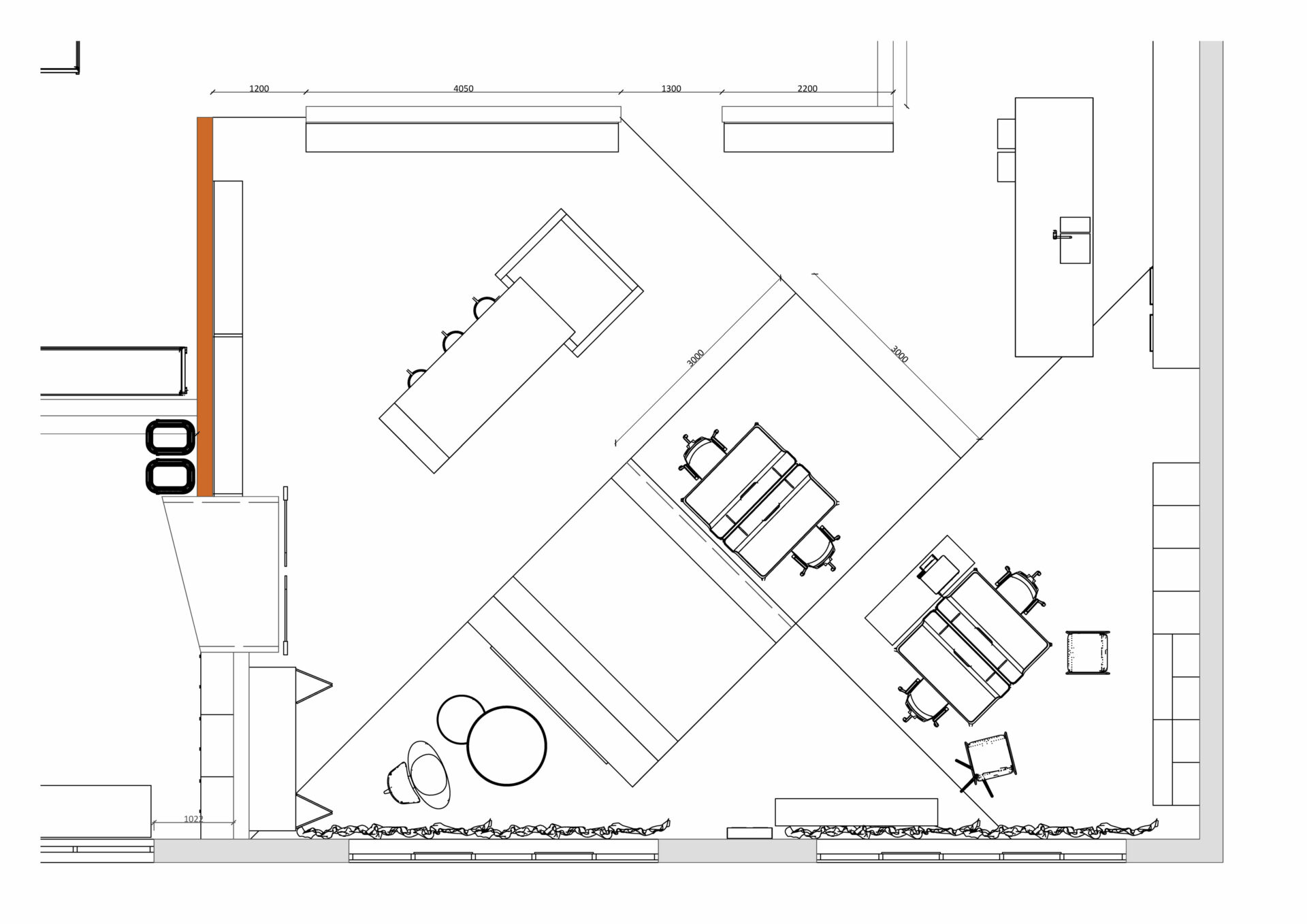
Localizat în Pitești, Decorum aduce la viață o experiență de showroom inovatoare, unde fiecare detaliu este conceput cu grijă pentru a reflecta identitatea brandului și pentru a oferi un mediu captivant și funcțional. Am pornit amenajarea de la logoul Decorum, care a devenit elementul generator al planimetriei spațiului. Planimetriea Inspirată de Logoul Decorum: Baza compartimentării centrale, cu funcția de spațiu de lucru, se integrează armonios peste amprenta logoului, creând o structură fluidă și plină de semnificații. Aici, culorile vibrante ale brandului sunt utilizate strategic pentru a sublinia identitatea și pentru a oferi un fundal atrăgător pentru expunerea produselor.
Scopuri și Funcționalități:
– expoziție de produse: Showroom-ul servește ca un vitrină pentru portofoliul divers de produse Decorum, cu zone specializate pentru PAL melaminat, MDF, blaturi, panouri antistrop, HPL compact, materiale compozite, feronerie și accesorii de mobilier.
– zonă de întâlnire: Un spațiu de întâlnire dedicat permite producătorilor de mobilier să se conecteze cu clienții lor într-un cadru profesional și estetic. Acest loc devine epicentrul discuțiilor și al colaborărilor creative.
-consiliere profesională: Personalul calificat din showroom oferă consiliere atât profesioniștilor din domeniul mobilierului, cât și beneficiarilor individuali, contribuind la definirea și înțelegerea detaliilor finale ale proiectelor.
– atmosferă prietenoasă și funcțională: am creat un cadru primitor și plăcut unde clienții se pot socializa în timp ce discută despre proiectele lor de amenajare. Zonele de expunere și de birou au fost inteligent integrate, permitând întinderea planurilor de amenajare și prezentarea mostrelor într-un mediu inspirat.
– bucătăria: nu este doar un spațiu funcțional, ci și un loc dedicat expunerii detaliilor fine ale feroneriei, sistemelor de iluminare, materialelor și compartimentărilor. Elementul definitoriu este posibilitatea închiderii complete, evidențiind astfel inovația și diversitatea produselor.
Zone Funcționale și Public Țintă: Intrare și Preluare: Modular și flexibil, permite accesul clienților în timpul amenajărilor și ulterior oferă un acces ușor către showroom. Expunere și Categorii de Produse: Sistemele uniforme de expunere creează o prezentare coerentă a gamei variate de produse Decorum, de la PAL melaminat la feronerie. Puncte de Lucru și Discuții: 4 posturi de lucru și zone dedicate discuțiilor, inspirate de conceptul Ikea, facilitează interacțiunea atât cu partenerii de B2B, cât și cu persoanele fizice pasionate de proiecte DIY. Public Țintă: B2B: Executanti de mobilier, designeri și arhitecți găsesc în showroom un spațiu de întâlnire profesional și o sursă de inspirație pentru proiectele lor. Persoane Fizice (DIY): Cu consultanță specializată și servicii de proiectare disponibile, showroom-ul devine un loc prietenos și informativ pentru cei care își doresc proiecte personalizate.
